Archive Record
Images


Metadata
Accession # |
A1995.53 |
Title |
Wellington County Library, plan for headquarters, 1993. |
Date |
23 March 1993 |
Description |
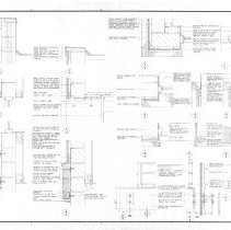
MAP 887: Plan for renovations of the Aboyne Library Branch, 23 March 1993, untitled. One pages refers to it as the "Wellington County Library, Fergus, Ontario". Prepared for County of Wellington by C. A. Ventin, Architect in 1993 prior to renovations; contains floorplan, key plan, reflected ceiling plan, elevations and details. |
Creator \ Maker |
Ventin, Carlos A. [ARCHITECT] |
Item Name |
Plan |
Person \ Organization |
Aboyne Public Library Fergus Public Library Wellington County Library |
Place |
Aboyne Nichol Twp. Wellington County Wellington Place |
Subject |
Architecture |
Photo, Map # |
MAP 887 |
Year Range from |
1993 |
Year Range to |
1993 |
Accession # |
A1995.53 |
Containers |
MC52 |